宸宇焕新·匠筑总部 介休宸宇汽车租赁有限公司总部装修工程稳步推进
发布时间 : 2026-01-27
浏览次数 : 10
宸宇焕新·匠筑总部 介休宸宇汽车租赁有限公司总部装修工程稳步推进
近日,介休宸宇汽车租赁有限公司(以下简称“宸宇租赁”)总部装修工程正以精工标准有序推进。此次总部升级以“品质筑造总部标杆,空间赋能产业发展”为核心理念,匠心规划一层门头旗舰展厅、地下多功能员工专属区、后院专业维保中心的三维功能布局,将品牌展示、高端接待、创新模式体验、专业运维与人文关怀深度融合。依托企业深耕行业斩获的多项荣誉积淀,本次总部装修不仅是空间的焕新升级,更是企业品牌战略、服务体系与创新业务模式的全面迭代,其核心打造的租满送车特色模式,将与全新总部空间形成协同,未来为介休及周边区域出行消费市场注入全新活力,树立本土汽车租赁行业高端服务与模式创新的双重标杆。
作为介休汽车租赁领域的标杆企业,宸宇租赁始终以专业、诚信的经营理念深耕市场,凭借完善的服务体系、优质的客户体验与创新的经营思维,斩获2025年晋中市首届“最受消费者满意汽车租赁”评选第三名,并获晋中新闻网等主流媒体专题报道,品牌实力与行业口碑备受认可。此次总部装修工程,企业将过往荣誉积淀转化为品质追求与创新动力,秉持“精工细作、精益求精”的施工原则,围绕“客户体验升级+员工价值赋能+模式创新落地+产业服务升级”四大核心进行空间规划,从设计选材到施工工艺均严格把控细节,力求以高端化、现代化、专业化的总部空间,匹配企业行业领军者的品牌定位,为租满送车创新模式的落地推广打造优质线下载体,彰显深耕本土、辐射周边的发展格局。
总部外立面以现代高端企业建筑设计语言为核心,甄选品牌专属高级色调为基底,搭配高透质感玻璃幕墙与金属线条勾勒,定制化品牌标识同步规划打造。完工后,总部外立面将在沉稳雅致中彰显简约大气的商业格调,既与介休城市发展肌理自然相融,又以鲜明的品牌辨识度成为区域内兼具行业特色与品质感的企业总部标杆,直观传递宸宇租赁的品牌实力与发展远见。
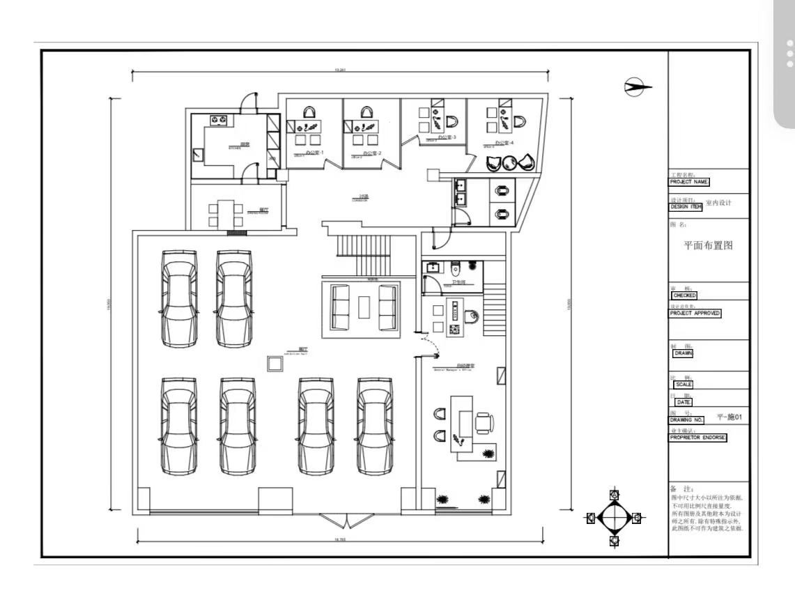
一层门头旗舰展厅:品牌形象与创新模式体验的核心窗口
一层作为总部面向客户与市场的核心形象窗口,目前正推进硬装施工与空间布局优化,以“沉浸式品牌体验+高效化高端服务+创新模式落地”为设计核心,打造通透开阔的旗舰展厅,更是宸宇租赁租满送车模式的核心体验与推广阵地。区域内科学划分高端客户接待区、精品车辆展示区与模式咨询体验区,通透落地玻璃最大化引入自然光线,搭配高端质感的地面与吊顶材质,营造开阔、静谧的商务接待氛围;接待区打造轻奢私密的洽谈场景,满足政企客户、高端个人客户的沟通需求;展示区以专业灯光布局与科学动线规划,为旗下适配租满送车模式的高端轿车、商务车、SUV及新能源车型打造专属展示空间,同步预留智能展示点位,实时呈现车型参数、个性化租满送车方案;模式咨询体验区将配备专业顾问,为客户提供一对一的租满送车模式讲解、方案定制服务,展厅内还专设企业荣誉展示区,集中陈列行业奖项与资质荣誉,让客户在了解创新模式的同时,直观感受宸宇租赁的品牌实力与行业认可。
宸宇租赁打造的租满送车模式,以“低首付、低月租、租期灵活、期满过户”为核心优势,兼具租赁灵活性与购车目的性,客户以低首付按月支付租金,租期结束后即可按约定获得车辆所有权,租赁期间还可享受宸宇租赁提供的保险、保养等一站式贴心服务,大幅降低购车门槛,释放客户资金流动性,适配个人创业、家庭用车、企业商务等多元场景,真正实现“先租后得,轻松拥车”。
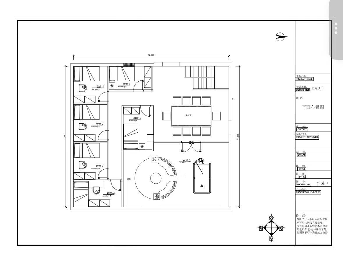
地下室多功能员工专属区:集休憩与娱乐于一体的人文赋能空间
地下室规划为集休息室与多功能娱乐室于一体的员工专属区域,是宸宇租赁“以人为本”企业理念的深度落地,目前正进行基础装修与功能分区打造,台球桌、KTV、娱乐电脑等设施同步规划配置,打造一站式员工休憩娱乐空间。员工休息区配备高品质休憩座椅、独立茶水间与智能储物柜,营造温馨舒适的放松环境,为员工提供工作之余的休憩港湾;相邻的多功能娱乐室规划打造三大专属娱乐区,台球区配置标准台球桌,满足员工休闲竞技需求;KTV专区打造专业影音环境,配备专业音响与点歌系统,为员工提供放松K歌、团队互动的休闲场景;电竞娱乐区配置高配置娱乐电脑,专为员工休闲娱乐打造,丰富工余生活。地下专属区将休憩与娱乐深度融合,不仅完善了总部的功能配套,更以实打实的人文关怀,为团队凝聚力与创造力的提升筑牢硬件基础,让专业的服务团队为宸宇租赁租满送车等创新业务的落地提供更优质的人力支撑。

后院专业维保中心:全链条服务与模式保障的专业安全基石
总部后院独立规划的专业修理厂,作为宸宇租赁车辆安全运营、全链条服务的核心保障枢纽,更是租满送车模式的重要硬件支撑,目前正同步推进标准化施工建设。修理厂将严格按照汽车专业维保标准打造,科学划分车辆检测区、维修保养区、洗车美容区等功能模块,配备行业领先的检测设备、维修工具与专业举升装置;场地地面采用防滑耐磨的专业工程材质,完善的通风与排污系统同步规划落地,力求打造整洁、安全、高效的现代化专业维保环境。未来,该维保中心将为宸宇租赁旗下所有车辆,尤其是租满送车模式下的车辆提供全方位、高标准的检修、养护与维保服务,从源头杜绝出行安全隐患,以专业硬实力守护客户每一次出行,为租满送车模式的落地实施提供坚实的售后保障,让客户租车、拥车全程无忧。
据宸宇租赁相关负责人介绍,目前总部装修工程正严格按照施工计划与品质标准稳步推进,企业将持续严把施工质量与安全关,确保工程高标准完工。新总部投入使用后,将以全新的空间形态、完善的功能配套、升级的服务标准与创新的租满送车模式,进一步提升品牌形象与市场竞争力,为广大客户提供更具品质感、个性化的汽车租赁与购车解决方案,同时以集休憩、娱乐于一体的员工专属空间,赋能员工成长与团队发展。未来,宸宇租赁将继续以行业荣誉为鞭策,坚守初心、深耕细作,以现代化企业总部为新起点,持续优化产品与服务体系,让租满送车创新模式惠及更多客户,为介休及周边区域汽车租赁行业的规范化、高端化、高质量发展贡献更多宸宇力量。




分享到
17835716444/18152112345